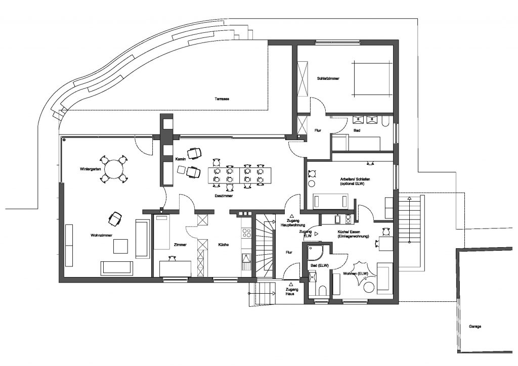
Sie brauchen Platz? Das gesamte Haus besteht aus der großen Wohnung und der kleinen Einliegerwohnung mit insgesamt 170 m² großzügig geschnittener Wohnfläche.
Das Gebäude ist vollständig unterkellert. Es stehen weitere 170 m² an Nutzfläche, einschließlich Waschküche mit zusätzlichem Kühl-Gefrierschrank, Spüle und Waschmaschine und einem 70 m² großen Hauptkeller-/ Hobbyraum zur Verfügung.

Das Grundstück hat eine Größe von 1.100m².
Die Außenbereiche sind pflegeleicht angelegt und können vollständig genutzt werden.
Neben zwei PKW-Außenstellplätzen gehört eine großzügige Garage mit Werkstattgrube zum Objekt.
Die Wohnungen sind Nichtraucherwohnungen. Die Haltung von Haustieren bedarf der Rücksprache.

Grundriss

Haben wir Ihr Interresse geweckt, oder benötigen Sie weitere Informationen? Hier finden Sie das Exposé zum Haus, oder schreiben Sie uns: fabian.schulz@tsp-ai.de. Wir freuen uns auf Sie!
